top of page
Create Your First Project
Start adding your projects to your portfolio. Click on "Manage Projects" to get started
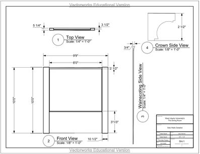
The Dining Room - Collegiate
Role
Scene Designer and Lead Carpenter
Project type
College Theatre
West Liberty University Theatre
October 2022
The idea for this set was to immortalize the WASP Dining Room aesthetic as if it were a museum exhibit, with the various scenes from different time periods acting as sort of memories around the furniture itself. A window gobo was used in the lighting for certain scenes to show various times of day.










bottom of page

